Sold

St. Johns Road, Mortimer Common, Reading - Price Guide £475,000



Peaceful setting in delightful village. Unmade road with little passing traffic.

  • Suitable for improvement and extension
  • Peaceful road
  • Mature private garden.

DESCRIPTION/LOCATION: A house of some character and style. In need of expenditure and suitable for extension – a previous application was approved but now expired.  St. Johns Road is one of the best roads in Mortimer with a range of individual houses and little passing traffic.  There are shops in West End Road and Victoria Road and a sports field nearby in The Street.  This house offers tremendous potential for extensions, which could be a loft conversion to provide an additional two bedrooms, a two storey side/rear extension and also conversion of the cellar.  Mortimer railway station offers services between Reading and Basingstoke.  Conveniently located to the southwest of Reading and well placed for Newbury to the northwest and Basingstoke to the south.

The accommodation comprises:

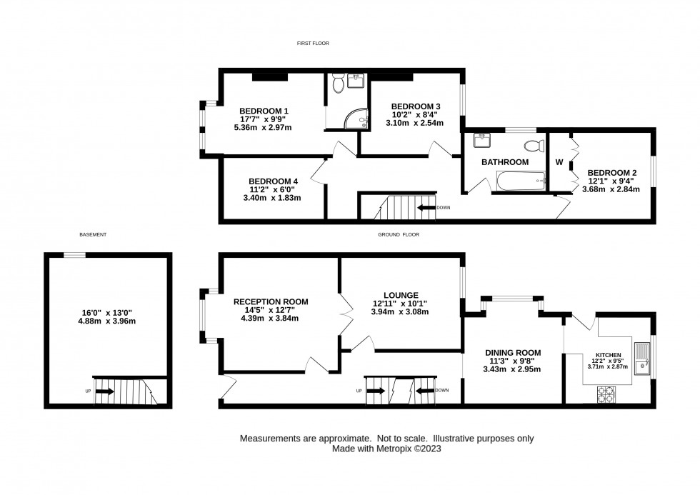
On the First Floor:

Master Suite:

Bedroom: 17’7 max x 9’9 with bay

Shower Room;with shower, wash basin, W.C.

Bedroom 2:12’1 x 9’4 with built-in wardrobes.

Bedroom 3: 10’2 x 8’4 with wardrobe.

Bedroom 4: 11’2 x 6’

Bathroom:with bath, wash basin, W.C.

Landing:access to roof space.

On the Ground Floor:

Entrance Hall:

Front Sitting Room: 14’5 into bay x 12’7.

Family Room: 13’ x 10’1 with double doors from front reception room.

Dining Room: 11’3 x 9’8 leading to:

Kitchen: 12’2 x 9’5 with full range of units including sink unit with adjoining worktop, cupboards and drawers below, good range of wall mounted cupboards, plumbing for washing machine and dishwasher, door to garden.

Basement: approx.. 6’6’ head height.

Outside:

There is off road parking in the front garden and beside the house. There is also parking in the road.

Garden Shed with electricity.

The Gardens:The rear garden is about x deep laid mainly to lawn with established hedges and mature trees.  The gardens provide a lovely secluded setting for the property.

Services: Mains water, electricity and drainage are connected.  Gas is available.  There are radiators but no central heating boiler.  The most recent boiler was oil fired.           

Council Tax: Band E.  EPC Assessment: E46.

Local Authority: West Berkshire Council, Market Street, Newbury. RG14 5LD   01635 55111

Planning Dept: T. 01635 51911  E:plan@planapps.westberks.gov.uk

Planning: Planning permission was granted for a single storey extension (now expired) which as proposed  would have enabled a larger kitchen, utility room and cloakroom. (4thAugust 2002.)  Other properties in the road have been extended into the roof space.  An additional two rooms in the roof space is considered practical.

Viewing:  By appointment with the Owner’s Sole Agents and Auctioneers, Martin & Pole, Wokingham.



Martin & Pole Estate Agents

To discuss this property please call us on

0118 978 0777

Printable Details
Floorplan for St. Johns Road, Mortimer Common, Reading
EPC Graph for St. Johns Road, Mortimer Common, Reading

I would like to view St. Johns Road, Mortimer Common, Reading


To:

Martin & Pole Estate Agents

Martin & Pole Estate Agents Wokingham

Wallis House
27 Broad Street
Wokingham
RG40 1AU

0118 978 0777
wokingham@martinpole.co.uk

Valuation

Property Valuation

Expose your property
to the right market

Request a Valuation

We are members of the
Royal Institution of Chartered Surveyors

Rics