Office Let Agreed

Crescent Road, Wokingham - £18,000



TO LET!! Ground floor premises - occupying a significant part of the ground floor. 

Current use Class E –Retail, professional and service uses (subject to Landlord’s approval) 

About 680 sq ft 

Two parking spaces

  • Edge of Town Centre
  • Ground Floor Commercial with 2 parking spaces.

TO LET!! Ground floor premises - occupying a significant part of the ground floor. 


Current use Class E –Retail, professional and service uses (subject to Landlord’s approval) 


Most recent uses have been beauty salon and prior to that, veterinary surgery and dental surgery.  


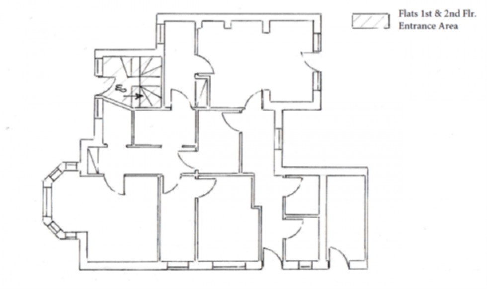
Currently set out with 3 treatment rooms, visitor and private toilets, reception area, kitchenette, administration office, storeroom. 


Two parking spaces 


About 680 sq ft 


LOCATION: St Vincents is within a short walk of Wokingham town centre in a predominantly residential neighbourhood. There is 30 minute parking in the road and nearby car parks offer 6 hours parking. 


DESCRIPTION: The property was adapted to provide virtually independent accommodation during the 1970s during which time the business use has varied from dentistry, veterinary surgery to the most recent occupier, a beauty salon. There are 3 principle rooms along with waiting room/reception area, toilets, kitchenette, administration office and storeroom. The property has gas fired central heating with radiators throughout. 


PLANNING: The property is within the administration area of Wokingham Borough Council.
The most recent occupation appears to fall within Class E of the Town and Country Planning Regulations 2020. This includes a range of uses which will not only need to satisfy the current planning use of the building but will also require the Landlord’s consent, who occupies the first floor. 


TERMS: A new lease on terms to be agreed. Proposals including “use” to be submitted in writing. 


RENT: £18,000 per annum 


RATEABLE VALUE: £15,500 from 1st April 2026 


SERVICES: Mains Water, Gas, Electricity and Drainage are connected. Electricity and Gas with sub-meter. 


Predicted Broadband Speeds:  Ultrafast download 1000 Mbps and Ultrafast upload 1000 Mbps 


Energy Performance:  Band E 


VIEWING: Strictly by appointment with the Landlord’s Sole Letting Agents Martin & Pole 


CODE FOR LEASING BUSINESS PREMISES: 
We strongly recommend a prospective Tenant or Purchaser takes professional advice from a qualified Surveyor, Solicitor or Licensed Conveyancer before agreeing to or signing a business tenancy agreement. The Code is available on the RICS website. Click Here


IMPORTANT NOTE:
We have endeavoured diligently to ensure the details of this property are accurate. We have not tested the services, appliances and fittings (if any) referred to in the details. We recommend that each of the statements is verified and the condition of the property and of the services, appliances and fittings (if any) is investigated by you or your advisers before you finalise your offer or enter into a contractual commitment. 



Martin & Pole Estate Agents

To discuss this property please call us on

Printable Details
Floorplan for Crescent Road, Wokingham

I would like to view Crescent Road, Wokingham


To:

Martin & Pole Estate Agents

Valuation

Property Valuation

Expose your property
to the right market

Request a Valuation

We are members of the
Royal Institution of Chartered Surveyors

Rics