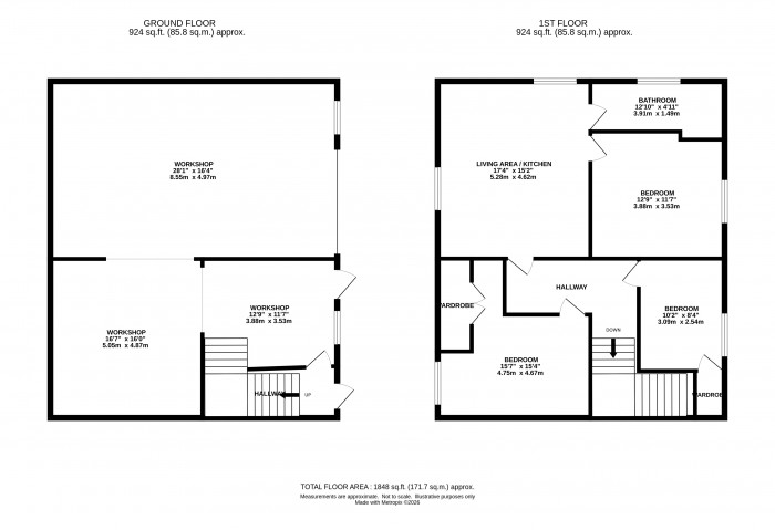
General Industrial (suitable for MOT Centre) with 3 bedroom "self contained” residential accommodation above.
Two bays 8.52m x 5.03m approx with vehicular access and 8.55m x 4.74m. Total 84.86 sq m (915 sq ft) approx
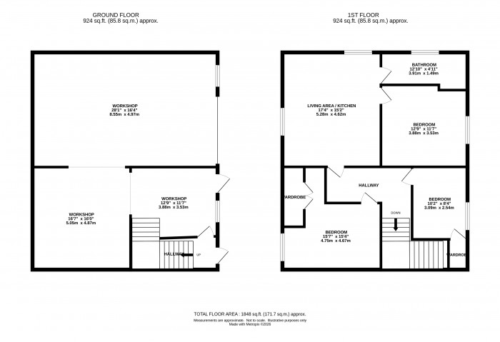
General Industrial (suitable for MOT Centre) with 3 bedroom "self contained” residential accommodation above.
General Industrial - Two bays 8.52m x 5.03m approx with vehicular access and 8.55m x 4.74m adjoining a pedestrian access at the front. Total 84.86 sq m (915 sq ft) approx
Two car parking spaces.
First floor flat – independently approached with
3 bedrooms, bathroom, open plan reception accommodation with kitchen.
Within a secure gated compound with other motor vehicle use occupiers.
About 1 mile from Wokingham town centre.
Freehold with vacant possesion.
General Industrial (suitable for MOT Centre) with 3 bedroom "self contained” residential accommodation above.
Two bays 8.52m x 5.03m approx with vehicular access and 8.55m x 4.74m. Total 84.86 sq m (915 sq ft) approx
We are members of the
Royal Institution of Chartered Surveyors
Please fill out the form below and we will email you the link to download the legal pack.
The contents of the Legal Pack may change prior to auction as further information or modifications are received from the Seller's Solicitors.
An up to date Information Pack will be available in the Auction Room.
It is the responsibility of the buyer to ensure that they are acting on the contents of the most up to date and complete Legal Pack. If in doubt please telephone 0118 978 0777