3 Bed Detached For Sale By Public Auction (unless previously sold)

Former Hurst Village Store and Post Office, The Street, Hurst - Price Guide £500,000



FOR SALE BY PUBLIC ONLINE AUCTION - Thursday 3rd July 2025 starting at 10.00 am (unless sold beforehand) Telephone our office to book a viewing appointment. 

Shop with independent 3 bed accommodation.

Retail area plus storage and office - about 1,250 sq ft. Good onsite carparking 

  • On Thursday 3rd July 2025 starting at 10.00 am
  • Vacant Possession
  • Retail and Residential
  • Prominent frontage to A321

FOR SALE BY PUBLIC ONLINE AUCTION - Thursday 3rd July 2025 starting at 10.00 am (unless sold beforehand) Telephone our office to book a viewing appointment. 

Shop with independent 3 bed accommodation.

Retail area plus storage and office - about 1,250 sq ft. Good onsite carparking 

DESCRIPTION / LOCATION: A detached period building with the original part believed to date from the 1600s.  Construction is mainly rendered elevations with the two storey part being tiled and the single storey mainly slate roof.  The majority of the ground floor has been occupied by the retail premises including a room as a storeroom but this has now been allocated to the flat – see below.

Whether for business or residential, this is a superb location.  For the former it enjoys a prominent main road location and for the latter there is a nearby primary school, recreation ground, village pond, cricket ground, parish church and several pubs. Also with Twyford railway station about 1 mile and the main shopping centre a little further, it is just about perfect.  The railway station offers services on the Paddington and Elizabeth Line.  The nearby road network is first class with the M4 available at either Wokingham (Junction 10) or on the outskirts of Maidenhead (Junction 8/9). Also the M40 is about a 20 minute drive.  Nearby towns including Maidenhead, Wokingham and Reading.  

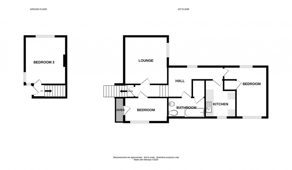
RETAIL: There are 2 “front doors”, one serving the Village Store and the other the Post Office area. Once inside however they are interconnected. Beyond the retail space at the front there is a store, office, second store and toilet. Approximate measurements/dimensions as follows: 

Retail.  Frontage about 27’ x 25’ max deep. 3 columns, otherwise mainly open with recess for the sale of tobacco, double central doors with windows displays on either side, air conditioning/heater

Post Office area: 10’6 wide x 12’8 deep, independent access and secondary access from shop

Inner Store: 21’7 x 9’ reducing to 7’3 with rear access

Office/Store/Kitchen: 16’3 x 9’3 with single drainer stainless steel sink unit, adjoining work top with cupboard and drawers below, rear fire exit, bars to windows, space for freezers, work top/desk unit with shelves above

Second Store: 8’3 x 5’9

Cloakroom: Wash hand basin, low level WC 

Outside: Private car park with private door from lobby (in other words there are 3 doors between the outside and the retail premises).

Residential Accommodation known as Cobweb Cottage. Mainly first floor flat with its own independent access. 

On the First Floor:

Hallway: 11 steps up to the landing with some exposed beams, second door and further 3 steps, sash window, wall mounted electric heater, window

Bedroom 1: 12’1 x 8’5 double aspect wardrobe, one sash window, one uPVC double glazed window, storage heater

Bedroom 2: 11’7 x 7’4  wall mounted electric heater, UPVC double glazed windows    

Bathroom: Modern white suite, panelled bath, mixer taps, hand shower, side screen, pedestal wash hand basin, low level WC, cupboard housing Green Storage water tank with balancing tank above

Kitchen: 8’3 x 9’3 narrowing to 6’, single drainer stainless steel sink unit, adjoining work top, cupboards below, space for plumbing for washing machine, double wall mounted cupboard, space for fridge/freezer, 2 further floor units with wall mounted cupboards above, space for electric cooker, sealed unit double glazed windows

Lounge: 14’9 x 11’7 fireplace, cupboard with electric fuses and meter, window, wall mounted electric heater.

On the Ground Floor:

Entrance Hall: Roof light

Bedroom 3/Study: 13’ x 11’9 open fireplace with brick surround, wall mounted electric radiator, 2 wall light points

Outside: The property enjoys a commanding road frontage of 88 ft and an average depth of 51 ft. There is a small garden area to the rear of the property but this really is very small and is perhaps best used for storage – it includes a shed.  The rear boundary adjoins a recreation ground.  The car park to one side is tarmaced with parking for 7/8 cars. There is unlimited car parking on the road in front and there is a forecourt with a post box.

Services: Mains water, gas, electricity and drainage are connected.

Rateable Value: Commercial property recorded under postcode RG10 0RG described as shop and premises £10,250

Council Tax: Residential property recorded under postcode RG10 0DB – Band C

EPC: Commercial property– CEPC Band C, valid until 4th May 2035 unless superceded.  Property described as retail/financial and professional services. Total floor area 132 sq m. CEPC RR the content of which has been considered and appears to be of little if any value.

Residential property, Cobweb Cottage – Band G1 valid until 22nd October 2030.

Local Authority: The property is within the administration area of Wokingham Borough Council.

Tenure: Freehold

Broadband: Superfast 80mbps download speed and 20mbps upload speed.

Viewing: By appointment with the Owner’s Sole Agents and Auctioneers, Martin & Pole, Wokingham.

The Solicitors: Wilks Price Hounslow, 9 Garfield Road, Ryde PO33 2PS Contact: Gabriella Cuoghi

THE CONDITIONS OF SALE:  are included in the Legal and Information Pack available from the Auctioneers prior to the Auction Sale and online at www.martinpole.co.uk.  A copy of the Conditions of Sale will be attached to these Particulars to form part of the Contract.

*  Property Auctioneers are required by the ASA to explain to prospective buyers the definitions of Price Guide and Reserve.  The Reserve is the minimum price set by the seller at which the auctioneer can sell the property.  The reserve can be set and agreed at any point up to the start of the auction or indeed can be changed during the auction.  The reserve can be lower than the guide price, the same as the guide price or up to 10% above the guide price.  In accordance with ASA guidelines the guide price can be changed at any time up to and including the day of the auction sale.  If the guide price is changed, we will endeavour to advertise the new guide price at the earliest opportunity.  A list of final guide prices will be published in the auction room immediately prior to the sale.  This may be the first opportunity to publish changes.

IMPORTANT NOTICES

Identification of the Buyer: To accord with the Money Laundering, Terrorist Financing and Transfer of Funds (Information on the Payer) Regulations 2017 and the Proceeds of Crime Act 2002 as amended:

For online auctions: To register no less than 24 hours before the start of the auction on the AMS platform (accessed via our website) which requires proof of ID to accord with the above regulations.  The registered bidder, if successful, is the Buyer.  If it is intended there should be two or more parties or a company bidding, the regulations apply to all parties including company directors.

For Public Auctions: The same regulations apply, with registration no less than one hour before the start of the sale.

Buyer’s Fee: A charge of £900 (inc VAT), payable only by the successful Buyer, will be due to the Auctioneers Martin & Pole.  An appropriate VAT receipted invoice will be issued.

Signing the Memorandum, Payment of the Deposit and Buyer’s Fee: The Auctioneer is authorised to sign the Memorandum/Contract on behalf of the Buyer.  The successful bidder at an online auction is liable to pay the deposit and the Buyer’s Fee of £900 inc vat at the conclusion of the sale or for a sale by public auction, on the fall of the hammer.  The deposit and Buyer’s Fee should be paid directly into the allocated Martin and Pole Client B account.

Property Details: We have endeavoured diligently to ensure the details of this property are accurate. We have not tested the services, appliances, or fittings (if any) referred to in the details.  We recommend that each of the statements is verified and the condition of the property and of the services, appliances, and fittings (if any) is investigated by you or your advisers before you finalise your offer to purchase, bid for the property or enter into a contractual commitment.

Stipulations: The property is sold with all faults and defects whether of condition or otherwise and neither the Seller nor the Agents of the Seller are responsible for any faults or defects or for any statements contained in the Particulars of the property prepared by the Agents.  The Buyer hereby acknowledges that he has not entered this Contract in reliance on any of the said statements and they have satisfied themselves as to the correctness of each of the said statements by said Agents in relation to or in connection with the property. 

 

 

 

 



Martin & Pole Estate Agents

To discuss this property please call us on

0118 978 0777

Printable Details
Floorplan for Former Hurst Village Store and Post Office, The Street, Hurst Floorplan for Former Hurst Village Store and Post Office, The Street, Hurst

I would like to view Former Hurst Village Store and Post Office, The Street, Hurst


To:

Martin & Pole Estate Agents

Martin & Pole Estate Agents Wokingham

Wallis House
27 Broad Street
Wokingham
RG40 1AU

0118 978 0777
wokingham@martinpole.co.uk

Valuation

Property Valuation

Expose your property
to the right market

Request a Valuation

We are members of the
Royal Institution of Chartered Surveyors

Rics