5 Bed Detached For Sale

Chetwode Close, Wokingham - £850,000



4 bedroom detached family home with a self contained annexe. 

Short cul de sac 

In need of updating and with potential to extend. 

No onward chain 

  • House (4 beds) + Annexe with bedroom
  • Just over half a mile from the town
  • No onward chain

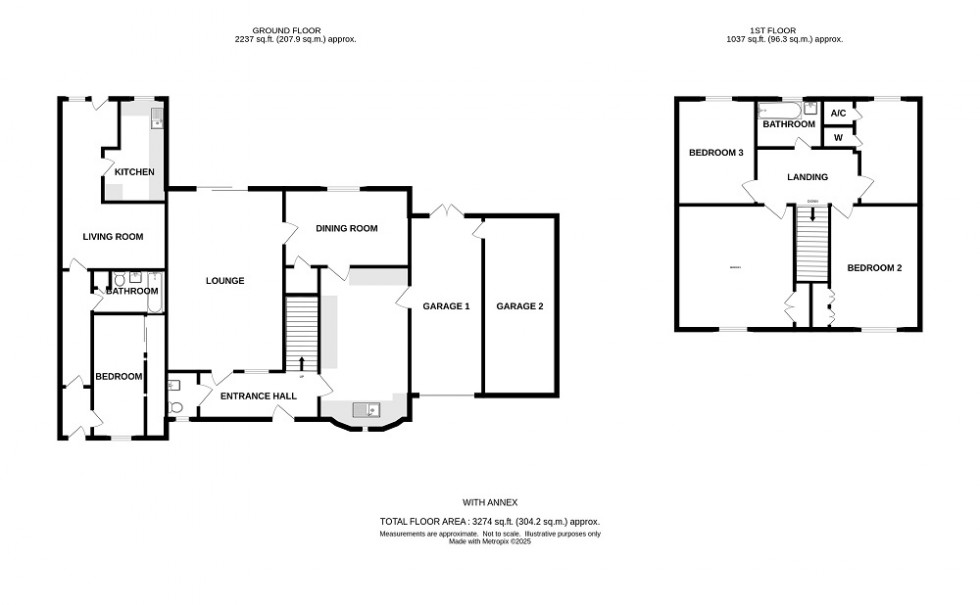
The Main House: 4 bedrooms, bathroom, entrance hall, cloakroom, lounge, dining room, kitchen/breakfast room, Gas central heating and double glazing. 

The Annexe: Entrance Hall, bedroom, bathroom, living/dining room, kitchen. 

Double Garage, 60 ft wide rear garden.  

Energy Performance:     D62  

Broadband Speed: Ultrafast 1000Mbps highest available download and upload speed  

DESCRIPTION/LOCATION:   In an established short cul-de-sac location, just off Rances Lane and about half a mile from Wokingham Town Centre. There are local shops nearby and also bus services between Reading and Bracknell, via Wokinhgham.  St Crispin’s School is within quarter of a mile. A329M less than one mile leads to M4 (J10), Reading, Bracknell and the M3 to the south at Bagshot.  

The house has been Let for many years, is considered suitable for improvement and extension whilst the annexe which has been unoccupied will require rather more improvement – but with a lovely garden about 30ft x 60ft this house offers tremendous potential.  

Bedroom 1: front aspect, built in wardrobe, radiator

Bedroom 2: front aspect, built in wardrobe, radiator 

Bedroom 3: rear aspect, radiator 

Bedroom 4:  rear aspect, radiator, built in wardrobe, airing cupboard with hot water tank 

Bathroom: panelled bath with electric shower over, low level WC, pedestal wash hand basin, tiling to walls, radiator  

Entrance Hall: radiator, glazed double doors to lounge 

Cloakroom: low level WC, wash hand basin, radiator 

Lounge: overlooking rear garden, radiator, sliding patio doors to rear garden 

Dining Room:  rear aspect, radiator, understair storage cupboard 

Kitchen/Breakfast Room:  front aspect with “Georgian” style bay window overlooking the front gardens and drive, with a range of eye and base level units with roll edged work surfaces, 1½ bowl sink unit, gas central heating boiler, door to garage    

Gardens:  Open plan front garden with lawns and borders, driveway parking for 2 vehicles leading to 2 single garages.  The rear garden enjoys a southerly aspect laid mainly to lawn with flower and shrub borders, patio adjoining the lounge.  

Garages: Two single garages with up and over doors, light and power and boarded ceilings.  The garage closest to the house has the electric meter, gas meter and fuse box.   

 Annexe: 

Entrance Hall:  radiator 

Bedroom: front aspect, radiator, range of wardrobes 

“L” shaped Lounge: with door to rear garden 

Kitchen: comprising base units with working surfaces, inset stainless steel sink unit, wall mounted storage cupboards, gas boiler for central heating  

Outside: Currently part of the garden is fenced to allow a private garden area for the annexe.  

Energy Efficiency Rating:          D62 – Main house 

Council Tax Band: Band E – Main house   Band A - Annexe 

IMPORTANT NOTICE: Please note that we have not checked whether any extension or alterations to the property comply with planning or building regulations.  This should be checked by your solicitor or surveyor.  We have endeavoured diligently to ensure the details of this property are accurate, however all measurements are approximate and none of the statements contained in these particulars are to be relied on as statements of fact.  They do not constitute any part of an offer or contract.  We have no authority to make any representation or give any warranty whatever in relation to this property.  We have not tested the services, appliances or fittings referred to in the details.  School catchment zones are verified as far as possible with the local authority but cannot be guaranteed, nor do they necessarily guarantee a place in the school.  We recommend that each of the statements is verified and the condition of the property, services, appliances and fittings is investigated by you or your advisers before you finalise your offer to purchase or you enter a contractual commitment.   

                                      



Martin & Pole Estate Agents

To discuss this property please call us on

0118 978 0777

Printable Details
Floorplan for Chetwode Close, Wokingham

I would like to view Chetwode Close, Wokingham


To:

Martin & Pole Estate Agents

Martin & Pole Estate Agents Wokingham

Wallis House
27 Broad Street
Wokingham
RG40 1AU

0118 978 0777
wokingham@martinpole.co.uk

Valuation

Property Valuation

Expose your property
to the right market

Request a Valuation

We are members of the
Royal Institution of Chartered Surveyors

Rics